Plan 2408

420 FT2
1
1.0
1.0
0
30.0
14.0
ON SALE
$499.00
$999.00
Main View
420 FT2
From
$499.00
1
1.0
1.0
0
30.0
14.0
Video Thumbnail

About This Plan

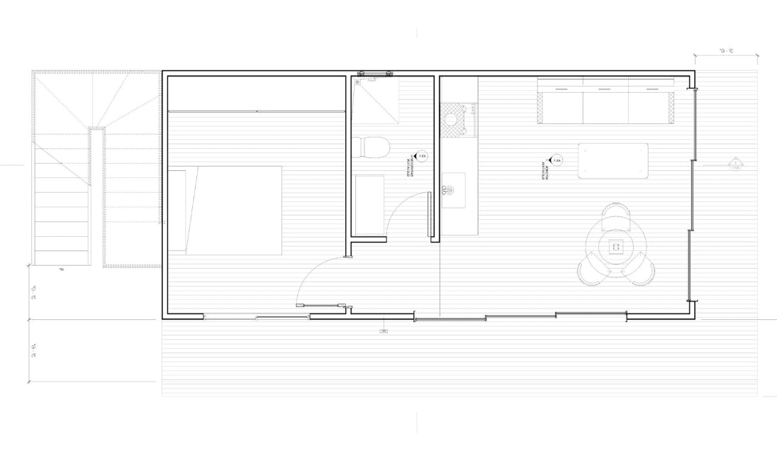
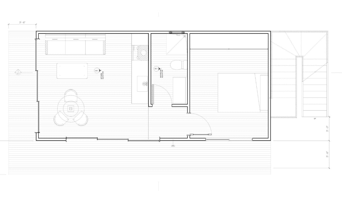
Discover the ideal blend of cozy charm and efficient design with this Charming Cottage House Plan. Perfect for those seeking a cabin-style tiny home, this thoughtfully crafted plan combines a compact layout with all the essentials for comfortable living. Featuring an open-concept living space, this modern cottage includes a well-equipped kitchen, cozy living area, and a spacious bedroom that maximizes comfort. The seamless flow of the floorplan makes it perfect as a primary residence, vacation getaway, or guest house, with a welcoming front porch to enjoy.

Specifications:
>>1 Bedroom, 1 Bath, 1 Kitchen
>>Living Area: 187 sq ft
>>Bathroom: 42 sq ft
>>Bedroom: 133 sq ft
Hall: 20 sq ft

Construction Material:
>>Wood Framing, Insulated Walls
>>Energy-efficient Windows
>>Durable Roofing Materials

Plan Includes:
1. Project Overview & General Notes
2. Architectural Floor Plan
3. Foundation Plan & Slab Layout
4. Wall Layout Plan
5. Roof Plan & Framing
6. Front & Side Elevations
7. Section Details
8. Door/Window Schedule
9. Join Details for Construction
10. Bath & Kitchen Layout
11. Staircase Details
12. Plumbing & Electrical Plans
13. Material Information

With its cabin-inspired aesthetic and meticulous attention to detail, this floorplan is designed for those who value simple elegance and functionality, providing everything needed for a charming, efficient home.

What's Included

What's Included in Your Plan

When you purchase this plan, you’ll receive a comprehensive set of digital drawings and details to guide you through every step of building your dream home. Each plan includes the following:

Important Notes

Digital Files Only:Ā No physical printed plans are included with your purchase. All files are provided in a digital format for your convenience.

It is highly recommended to consult with a licensed builder or architect to ensure compliance with local building codes and regulations.

Personal Use Only:Ā These plans are intended for personal use only. Redistribution, resale, or sharing of the files is strictly prohibited.

No Returns:Ā Due to copyright laws and the nature of digital products, returns or exchanges are not available.

Source Files Included

CAD Files: Editable CAD files to modify and adapt the design to your specific needs.


SketchUp Files: 3D SketchUp models for a detailed and interactive view of the design.

This plan is perfect for anyone looking to build their dream home with a touch of elegance and modern house aesthetic. Ready to bring your vision to life? Download your plan today and take the first step towards your serene homestead retreat.

Drawings Included

Presentation Drawing: A visual overview of the design, showcasing the aesthetic and layout.
Working Drawing: Detailed drawings that include all necessary construction notes and specifications.
West & East Elevation: Side views of the house, showing the heights and finishes from the west and east perspectives.
South & North Elevation: Front and rear views of the house, outlining the heights and finishes from the south and north perspectives.
Section A-A': A cross-sectional view that details the interior structure along the A-A’ line.
Section B-B': A cross-sectional view that details the interior structure along the B-B’ line.
Section C-C': A cross-sectional view that details the interior structure along the C-C’ line.
Structural Layout: The foundational framework, including floor layouts and roof structures.
Wall Framing Details: Specifics on how each wall is constructed, including dimensions and materials.
Post Details: Information on the structural posts that support the building.
Header Details: Detailed drawings of the header construction above windows and doors.
Steel Truss Details: Layout and specifications for any steel trusses used in the structure.
Joining Details: Information on how various elements of the building are connected.
Electrical Drawing: A layout of the electrical plan, including the placement of outlets, switches, and fixtures.
Plumbing Drawing: Detailed plumbing layout, showing the placement of pipes, fixtures, and connections.
Material List: A comprehensive list of materials required for the construction of your home.
Slab Details: Information regarding the foundation slab, including dimensions and materials used.