Plan 2501

290 FT2
1
1.0
1.0
0
13.0
21.0
ON SALE
$199.00
$999.00
Main View
290 FT2
From
$199.00
1
1.0
1.0
0
13.0
21.0
Video Thumbnail

About This Plan

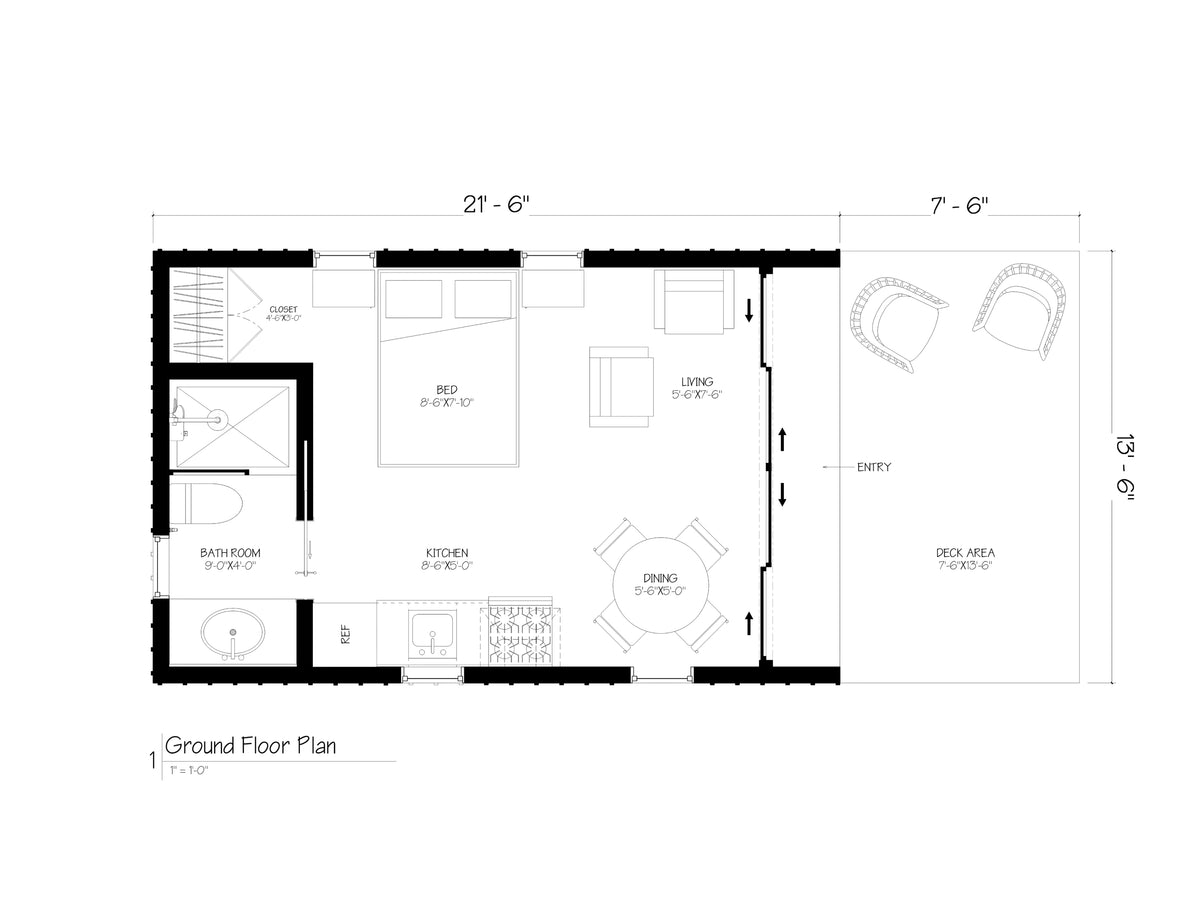
Modern Glass Cabin - 290 sq. ft.
Stylish Compact Living with a Contemporary Edge

Overview
Experience modern simplicity and luxury in this sleek glass cabin. At 396 sq. ft., this elegant retreat is perfect for weekend getaways, vacation rentals, or minimalist living, seamlessly blending contemporary design with nature.

Key Features

β€’Total Space: 290 sq. ft. of efficient, thoughtfully designed living area.
β€’Bedroom: 1 private bedroom offering maximum comfort.
β€’Bathroom: A modern bathroom with sophisticated fittings and fixtures.
β€’Kitchen: Fully equipped with high cabinets, a built-in oven, a dishwasher, and ample storage for a functional cooking space.
β€’Living Area: Spacious and inviting, complete with a cozy wood stove for relaxation and entertaining.
β€’Windows: Expansive floor-to-ceiling glass windows illuminate the space with natural light and provide breathtaking panoramic views.
β€’Porch: A chic front terrace for outdoor lounging or hosting.
β€’Eco-Friendly Design: Built with energy efficiency in mind using sustainable materials.
Exterior Design

The cabin's sloped roof and striking glass walls make it a harmonious addition to any natural setting. Its minimalist and modern aesthetic ensures it stands out while blending in, making it the centerpiece of any property.

The Perfect Modern Getaway:
This glass cabin combines style, functionality, and comfort, making it the ideal solution for those seeking a sophisticated and practical retreat. Transform your vision of modern livingβ€”make this cabin yours today!

Important Notes:
-No physical printed plans included; digital files only
-Consult with a licensed builder or architect for local code compliance
-Plans are for personal use only; redistribution is prohibited
-Due to copyright laws, returns are not available

What's Included

What's Included in Your Plan

When you purchase this plan, you’ll receive a comprehensive set of digital drawings and details to guide you through every step of building your dream home. Each plan includes the following:

Important Notes

Digital Files Only:Β No physical printed plans are included with your purchase. All files are provided in a digital format for your convenience.

It is highly recommended to consult with a licensed builder or architect to ensure compliance with local building codes and regulations.

Personal Use Only:Β These plans are intended for personal use only. Redistribution, resale, or sharing of the files is strictly prohibited.

No Returns:Β Due to copyright laws and the nature of digital products, returns or exchanges are not available.

Source Files Included

CAD Files: Editable CAD files to modify and adapt the design to your specific needs.


SketchUp Files: 3D SketchUp models for a detailed and interactive view of the design.

This plan is perfect for anyone looking to build their dream home with a touch of elegance and modern house aesthetic. Ready to bring your vision to life? Download your plan today and take the first step towards your serene homestead retreat.

Drawings Included

Presentation Drawing: A visual overview of the design, showcasing the aesthetic and layout.
Working Drawing: Detailed drawings that include all necessary construction notes and specifications.
West & East Elevation: Side views of the house, showing the heights and finishes from the west and east perspectives.
South & North Elevation: Front and rear views of the house, outlining the heights and finishes from the south and north perspectives.
Section A-A': A cross-sectional view that details the interior structure along the A-A’ line.
Section B-B': A cross-sectional view that details the interior structure along the B-B’ line.
Section C-C': A cross-sectional view that details the interior structure along the C-C’ line.
Structural Layout: The foundational framework, including floor layouts and roof structures.
Wall Framing Details: Specifics on how each wall is constructed, including dimensions and materials.
Post Details: Information on the structural posts that support the building.
Header Details: Detailed drawings of the header construction above windows and doors.
Steel Truss Details: Layout and specifications for any steel trusses used in the structure.
Joining Details: Information on how various elements of the building are connected.
Electrical Drawing: A layout of the electrical plan, including the placement of outlets, switches, and fixtures.
Plumbing Drawing: Detailed plumbing layout, showing the placement of pipes, fixtures, and connections.
Material List: A comprehensive list of materials required for the construction of your home.
Slab Details: Information regarding the foundation slab, including dimensions and materials used.