Plan 2504

250 FT2
1
1.0
1.0
0
20.0
13.0
ON SALE
$199.00
$999.00
Main View
250 FT2
From
$199.00
1
1.0
1.0
0
20.0
13.0

About This Plan

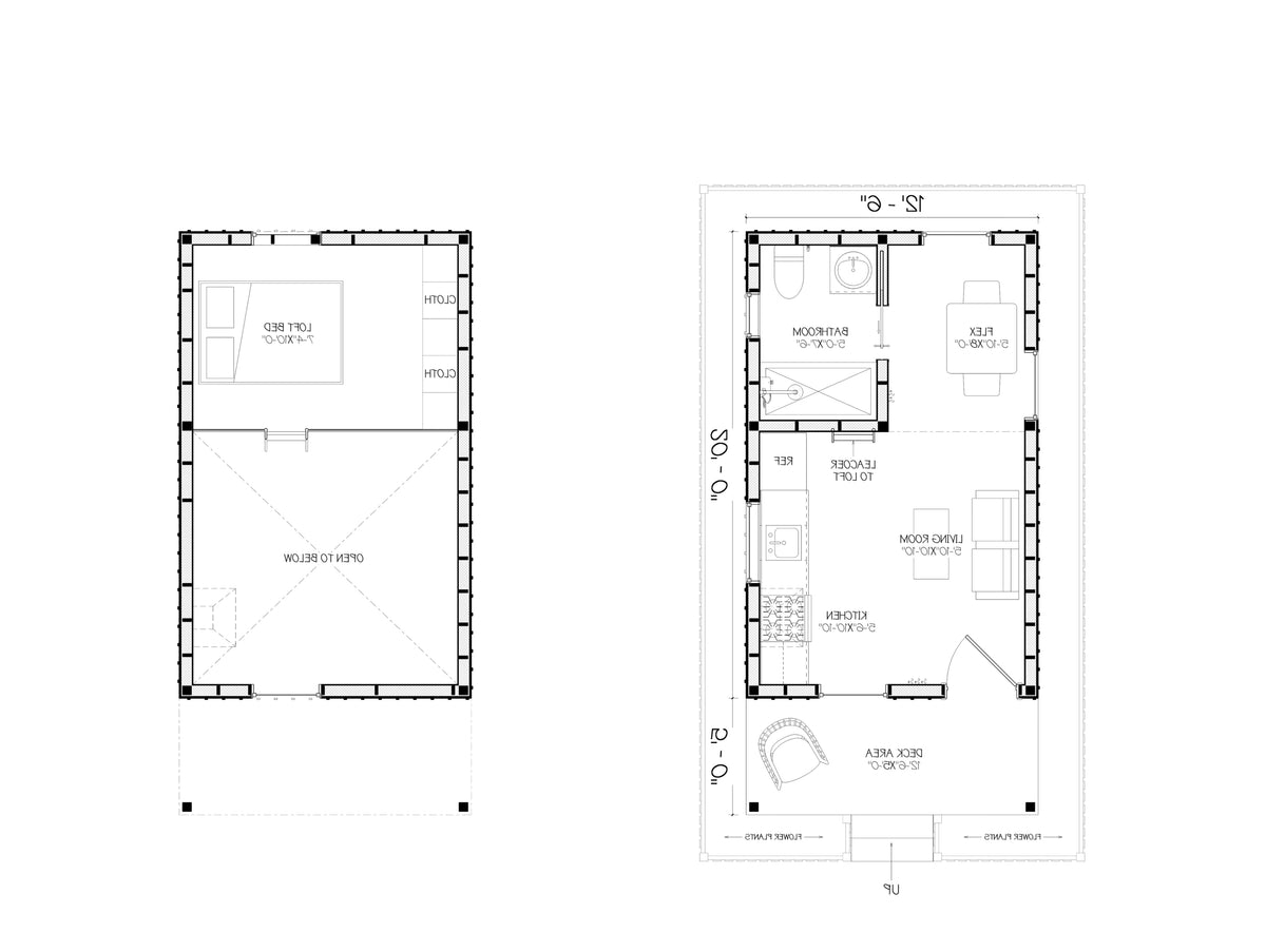
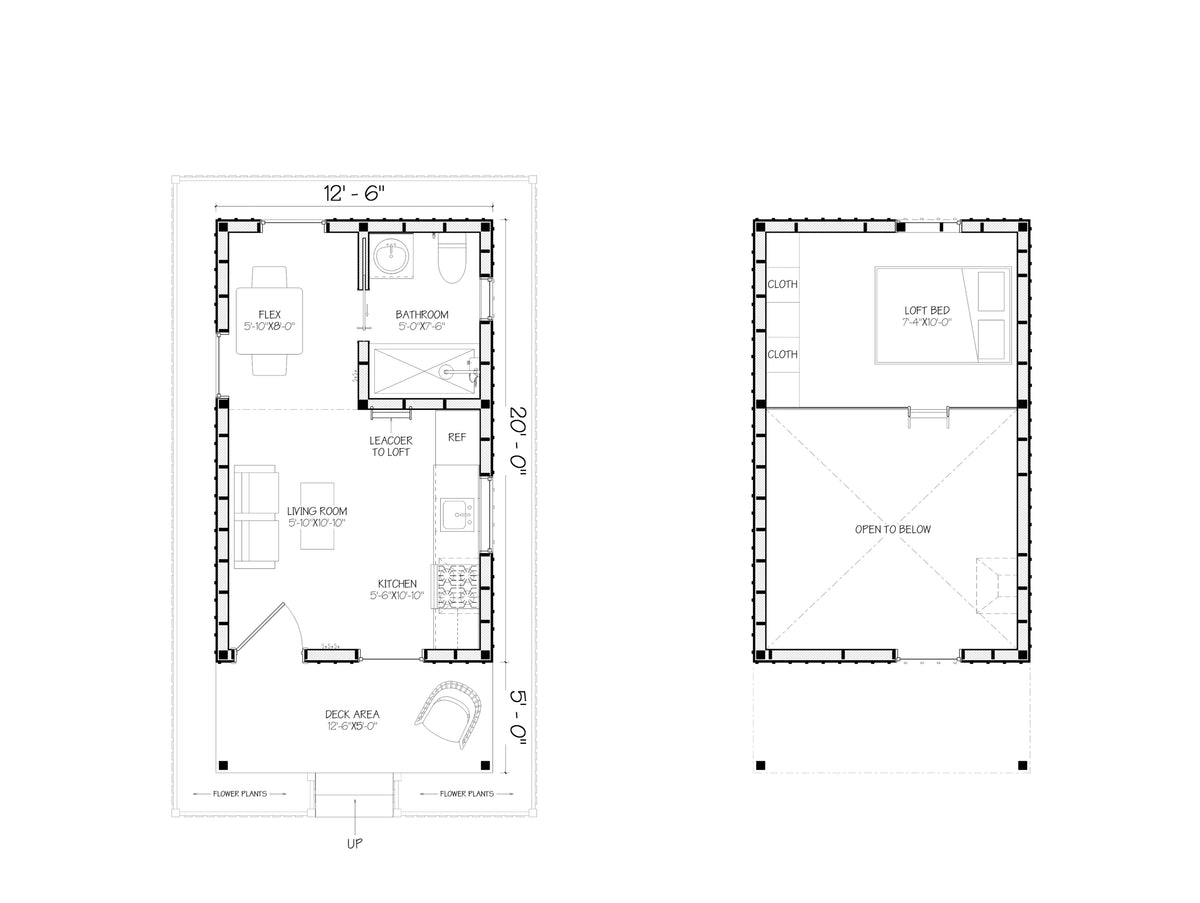
Discover the charm and efficiency of our Modern Tiny Cabin House Plan, designed for those seeking a compact, functional, and stylish living space. Whether you’re looking for a cozy weekend retreat, a minimalist year-round home, or a cost-effective rental property, this thoughtfully designed plan is a perfect fit. With a 250 sqft living area, plus a covered porch, this tiny home balances space-saving features with modern aesthetics, providing an inviting and practical environment for homeowners who appreciate simplicity and sustainability. Ideal for those embracing the tiny house movement, this plan maximizes every square foot to ensure comfort, utility, and beauty.

Specifications:
- Living Area: 250 Sqft
- Uncovered Deck: 62 Sqft
- Total Footprint: 312 Sqft
- Footprint to Lot Coverage: 312 Sqft
- Kitchen: 60 sqft
- Living: 63 sqft
- Loft Bedroom: 73 sqft
- Bathroom: 37 sqft
- Closet: 11 sqft

Built with wood framing, insulated walls, and energy-efficient windows, this structure is durable and well-suited for various climates, ensuring a comfortable living experience year-round.

What’s Included in the Plan?
A0.1 – Project Overview
A0.2 – General Notes
A1.1 – Architectural Floor Plan
A1.2 – Foundation Plan & Slab
A1.3 – Wall Layout Plan
A1.4 – Ceiling & Roof Plan & Framing
A2.1 – Elevation
A3.1 – Section
A4.1 – Door & Window Schedule
A4.2, A4.3, A4.4 – Join Details
A5.1 – Kitchen Details
A5.2 – Bathroom Details
E1.1 – Electrical Plan
P1.1 – Plumbing Plan
M1.1 – Material Info
These meticulously crafted drawings will help homeowners, DIY builders, and contractors bring this tiny cabin to life with ease.

Additional Project Information:
1. Design Features: 12.5' x 20' small cabin, loft bedroom with ladder, open floor plan, front porch area, modern compact design.
2. Construction Materials: Durable wood framing, insulated walls, energy-efficient windows, and high-quality roofing materials.
3. Intended Use: Ideal as a vacation retreat, guest house, rental unit, or full-time residence.

Important Notes:
ā— No physical printed plans included; digital files only
ā— Consult with a licensed builder or architect for local code compliance
ā— Plans are for personal use only; redistribution is prohibited
ā— Due to copyright laws, returns are not available

This modern tiny cabin plan offers the perfect balance between affordability, efficiency, and style. Whether you're downsizing or creating an affordable rental space, this tiny home plan is a fantastic choice. Get your DIY-friendly plans today and start building your dream tiny home!

What's Included

What's Included in Your Plan

When you purchase this plan, you’ll receive a comprehensive set of digital drawings and details to guide you through every step of building your dream home. Each plan includes the following:

Important Notes

Digital Files Only:Ā No physical printed plans are included with your purchase. All files are provided in a digital format for your convenience.

It is highly recommended to consult with a licensed builder or architect to ensure compliance with local building codes and regulations.

Personal Use Only:Ā These plans are intended for personal use only. Redistribution, resale, or sharing of the files is strictly prohibited.

No Returns:Ā Due to copyright laws and the nature of digital products, returns or exchanges are not available.

Source Files Included

CAD Files: Editable CAD files to modify and adapt the design to your specific needs.


SketchUp Files: 3D SketchUp models for a detailed and interactive view of the design.

This plan is perfect for anyone looking to build their dream home with a touch of elegance and modern house aesthetic. Ready to bring your vision to life? Download your plan today and take the first step towards your serene homestead retreat.

Drawings Included

Presentation Drawing: A visual overview of the design, showcasing the aesthetic and layout.
Working Drawing: Detailed drawings that include all necessary construction notes and specifications.
West & East Elevation: Side views of the house, showing the heights and finishes from the west and east perspectives.
South & North Elevation: Front and rear views of the house, outlining the heights and finishes from the south and north perspectives.
Section A-A': A cross-sectional view that details the interior structure along the A-A’ line.
Section B-B': A cross-sectional view that details the interior structure along the B-B’ line.
Section C-C': A cross-sectional view that details the interior structure along the C-C’ line.
Structural Layout: The foundational framework, including floor layouts and roof structures.
Wall Framing Details: Specifics on how each wall is constructed, including dimensions and materials.
Post Details: Information on the structural posts that support the building.
Header Details: Detailed drawings of the header construction above windows and doors.
Steel Truss Details: Layout and specifications for any steel trusses used in the structure.
Joining Details: Information on how various elements of the building are connected.
Electrical Drawing: A layout of the electrical plan, including the placement of outlets, switches, and fixtures.
Plumbing Drawing: Detailed plumbing layout, showing the placement of pipes, fixtures, and connections.
Material List: A comprehensive list of materials required for the construction of your home.
Slab Details: Information regarding the foundation slab, including dimensions and materials used.