Plan-2521

975 FT2
3
2.0
1.0
0
36.0
27.0
ON SALE
$199.00
$999.00
Main View
975 FT2
From
$199.00
3
2.0
1.0
0
36.0
27.0
Video Thumbnail

About This Plan

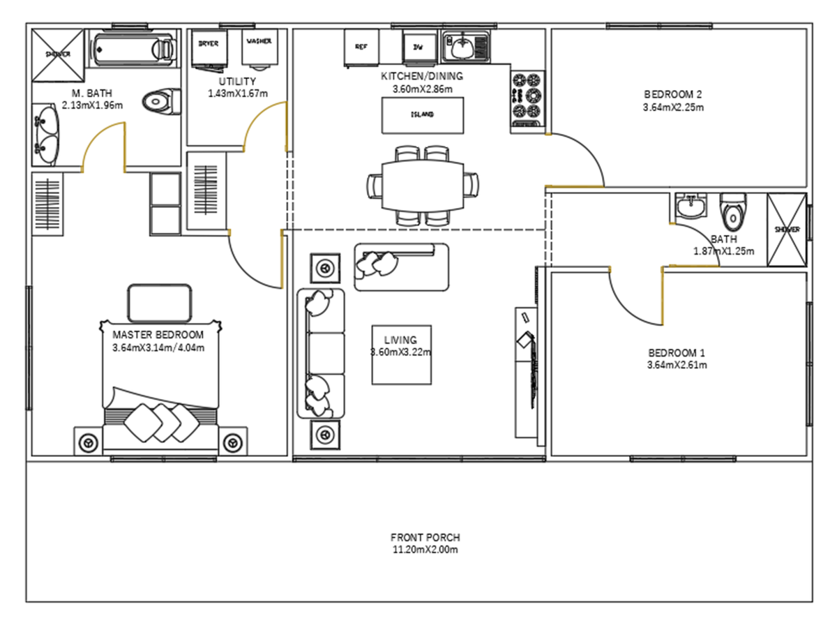
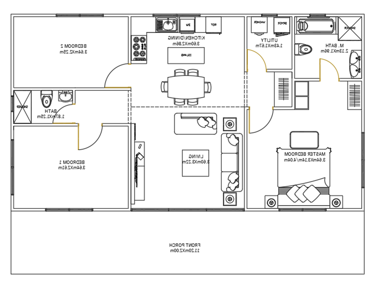
Experience the perfect balance of modern design and practical living with this Modern Cottage House Plan, thoughtfully designed using metric measurements. With a total area of 92.40 square meters, this compact yet comfortable home features 3 bedrooms and 2 bathrooms, making it ideal for small families, vacation homes, guest houses, or Airbnb rentals.

The smart single-story layout includes an open-concept living, dining, and kitchen area that maximizes space, natural light, and everyday functionality. The sleek mono-pitch roof adds a contemporary architectural touch while enhancing drainage and energy efficiency. Clean lines, generous window placement, and a simple footprint make this modern cottage both stylish and cost-effective to build.

Whether you are planning a small house build, modern cottage retreat, or minimalist family home, this plan offers flexibility, comfort, and timeless appeal. Designed entirely in metric units, it is especially suitable for international buyers and builders who prefer metric-based construction drawings.

This house plan includes clear, detailed architectural blueprints that are easy to follow and suitable for professional review, balancing modern aesthetics with efficient living.

Plan Details (Metric Measurement):
- Total Floor Area: 92.40 sqm
- Floors: 1
- Bedrooms: 3
- Bathrooms: 2
- House Width: 11.20 meters
- House Depth: 8.25 meters
- Overall Height: Approx. 4.49 meters
- Roof Style: Mono-pitch (single-slope)
- Architectural Style: Modern Cottage / Contemporary Small Home

Drawings Included:
- Ground Floor Plan
- Slab Layout with Load-Bearing Walls
- Roof Outline
- Ceiling Outline
- Sections in Floor Plan
- Section A-A’
- Section B-B’
- East Elevation
- West Elevation
- North Elevation
- South Elevation
- Rafter Details
- Wall Details
- Wall & Window Details
- Exterior Wall Foundation Details
- Framing Details
- Electrical Plan
- Plumbing Plan
- Drainage Plan
- Kitchen & Bathroom Details
- Door & Window Schedule

Important Notes:
- This is a digital download only; no printed plans will be shipped
- All drawings are provided in metric measurements
- Plans are not site-specific and may require review by a local architect or engineer
- Buyers are responsible for checking local building codes and regulations
- Plans are for personal use only and may not be resold or redistributed
- Due to the digital nature of this product, returns are not available

This Modern Cottage House Blueprint is perfect for anyone looking to build a stylish, efficient home with a contemporary edge and a compact footprint. Ready to turn your vision into reality? Download your plan today and start building your modern cottage dream.

What's Included

What's Included in Your Plan

When you purchase this plan, you’ll receive a comprehensive set of digital drawings and details to guide you through every step of building your dream home. Each plan includes the following:

Important Notes

Digital Files Only:Ā No physical printed plans are included with your purchase. All files are provided in a digital format for your convenience.

It is highly recommended to consult with a licensed builder or architect to ensure compliance with local building codes and regulations.

Personal Use Only:Ā These plans are intended for personal use only. Redistribution, resale, or sharing of the files is strictly prohibited.

No Returns:Ā Due to copyright laws and the nature of digital products, returns or exchanges are not available.

Source Files Included

CAD Files: Editable CAD files to modify and adapt the design to your specific needs.


SketchUp Files: 3D SketchUp models for a detailed and interactive view of the design.

This plan is perfect for anyone looking to build their dream home with a touch of elegance and modern house aesthetic. Ready to bring your vision to life? Download your plan today and take the first step towards your serene homestead retreat.

Drawings Included

Presentation Drawing: A visual overview of the design, showcasing the aesthetic and layout.
Working Drawing: Detailed drawings that include all necessary construction notes and specifications.
West & East Elevation: Side views of the house, showing the heights and finishes from the west and east perspectives.
South & North Elevation: Front and rear views of the house, outlining the heights and finishes from the south and north perspectives.
Section A-A': A cross-sectional view that details the interior structure along the A-A’ line.
Section B-B': A cross-sectional view that details the interior structure along the B-B’ line.
Section C-C': A cross-sectional view that details the interior structure along the C-C’ line.
Structural Layout: The foundational framework, including floor layouts and roof structures.
Wall Framing Details: Specifics on how each wall is constructed, including dimensions and materials.
Post Details: Information on the structural posts that support the building.
Header Details: Detailed drawings of the header construction above windows and doors.
Steel Truss Details: Layout and specifications for any steel trusses used in the structure.
Joining Details: Information on how various elements of the building are connected.
Electrical Drawing: A layout of the electrical plan, including the placement of outlets, switches, and fixtures.
Plumbing Drawing: Detailed plumbing layout, showing the placement of pipes, fixtures, and connections.
Material List: A comprehensive list of materials required for the construction of your home.
Slab Details: Information regarding the foundation slab, including dimensions and materials used.